СОНТ "Сибирский огородник" в части земельного участка 86:11:0401001:23

Утверждены постановлением администрации города Нижневартовска от 08.07.2021 №563 "Об утверждении проекта планировки территории и проекта межевания территории садово-огороднического некоммерческого товарищества "Сибирский огородник" в части земельного участка с кадастровым номером 86:11:0401001:23"

  1. Основная часть проекта планировки территории
    (DOC, 385.5Кб)

  2. Материалы по обоснованию проекта планировки территории
    (DOC, 332Кб)

  3. Основная часть проекта межевания территории
    (DOC, 880Кб)

  4. Схема границ ЗОУИТ
    (JPG, 279.03Кб )

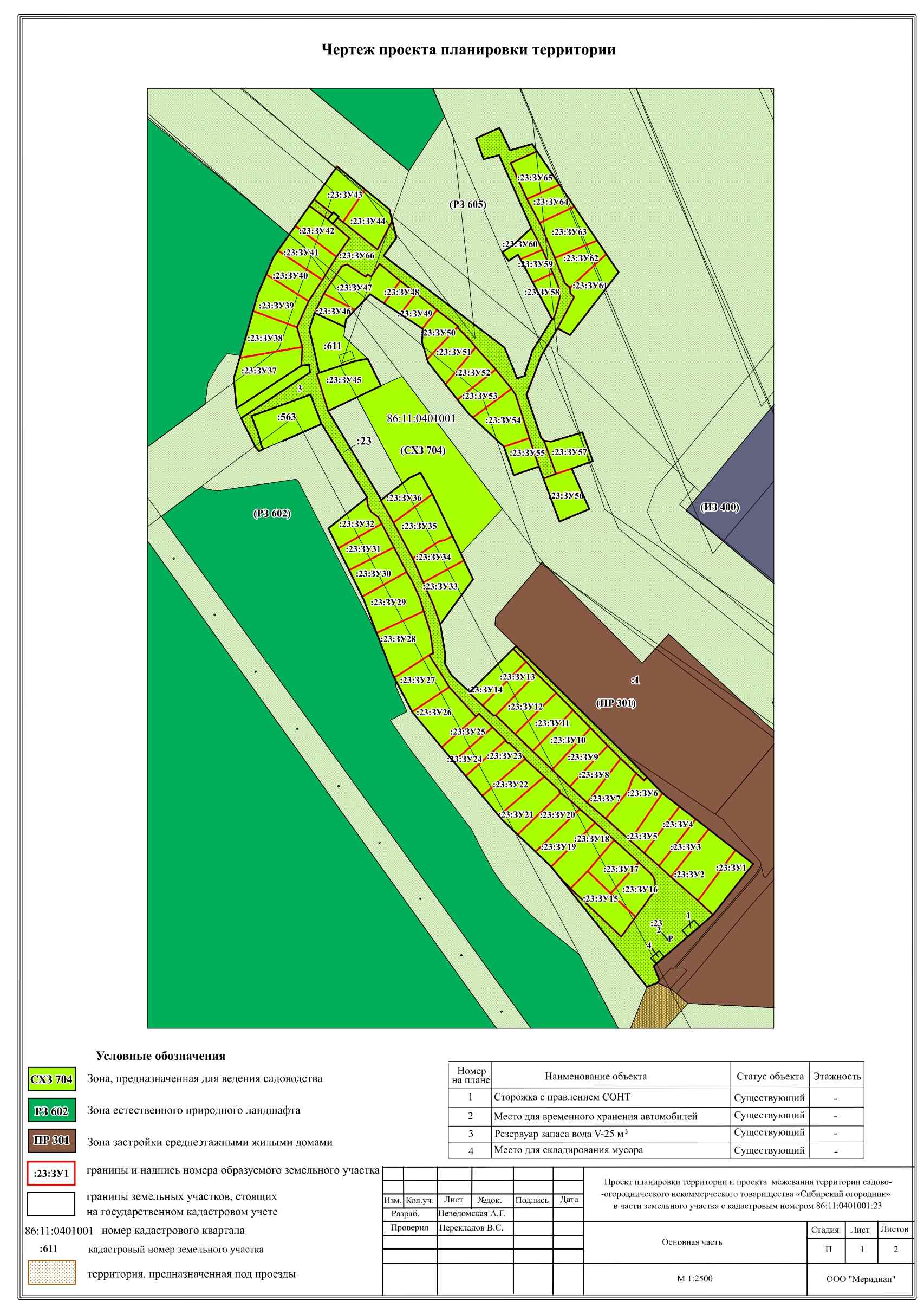
  5. Чертеж проекта планировки
    (JPG, 288.42Кб )

  6. Схема размещения проездов
    (JPG, 1.11Мб )

  7. Фрагмент планировочной структуры
    (JPG, 586.57Кб )

  8. Чертеж межевания территории
    (JPG, 249.34Кб )

размещено:01.09.2022
 
Нижневартовск www.n-vartovsk.ru