22 квартал

Утвержден постановлением администрации города Нижневартовска от 22.07.2019 571 "Об утверждении проекта внесения изменений в проект планировки территории Восточного планировочного района (III очередь строительства) в части квартала 22 и проекта межевания территории квартала 22 города Нижневартовска" 


  1. Чертеж архитектурно-планировочной организации ЗУ
    (JPG, 2.2Мб )

  2. .Чертеж размещения инженерных сетей и сооружений
    (JPG, 1.85Мб )

  3. Чертеж функционального зонирования
    (JPG, 1.69Мб )

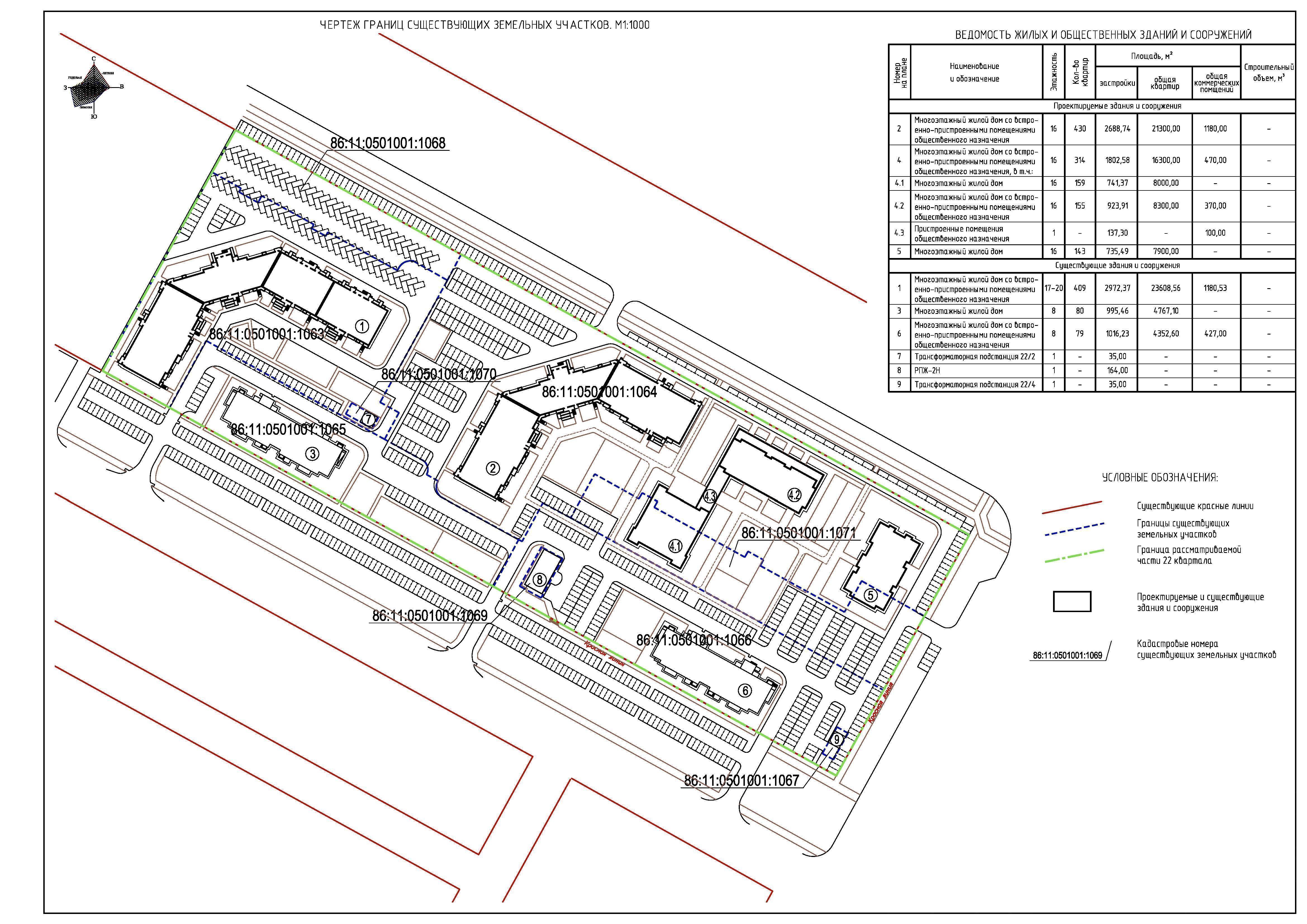
  4. Чертеж границ существующих ЗУ
    (JPG, 1.49Мб )

  5. Чертеж границ образуемых ЗУ
    (JPG, 1.45Мб )

  6. Разбивочный чертеж красных линий
    (JPG, 1.88Мб )

  7. Чертеж границ зон действия публичных сервитутов
    (JPG, 1.55Мб )

  8. Координаты границы сервитута сетей тепловодоснабжения С1
    (JPG, 373.73Кб )

  9. Координаты границы сервитута сетей тепловодоснабжения С2
    (JPG, 121.76Кб )

  10. Координаты границы сервитута сетей водоотведения С3
    (JPG, 469.22Кб )

  11. Координаты границы сервитута сетей электроснабжения С4
    (JPG, 563.12Кб )

  12. Координаты границы сервитута внутриквартальных проездов С5
    (JPG, 493.77Кб )

размещено:14.08.2019
 
Нижневартовск www.n-vartovsk.ru