Проведение публичных слушаний по проекту планировки территории и проекту межевания территории 10В микрорайона и части улично-дорожной сети г. Нижневартовска

Администрация города проводит публичные слушания по проекту планировки и проекту межевания территории 10В микрорайона и части улично-дорожной сети г. Нижневартовска. Слушания состоятся 23 августа 2016 года в 18 часов в здании администрации города по адресу: ул. Таежная, 24, каб. № 312. В целях соблюдения права на благоприятные условия жизнедеятельности для участия в публичных слушаниях приглашаются жители города. Предложения и замечания по проекту планировки и проекту межевания территории 10В микрорайона и части улично-дорожной сети г. Нижневартовска принимаются до 23.08.2016 в письменном и электронном виде по адресу: город Нижневартовск, улица Таежная, 24, каб. 309. Контактный телефон: 24 15 97, электронная почта uag@n-vartovsk.ru.

  1. Проект межевания территории
    (JPG, 834.35Кб )

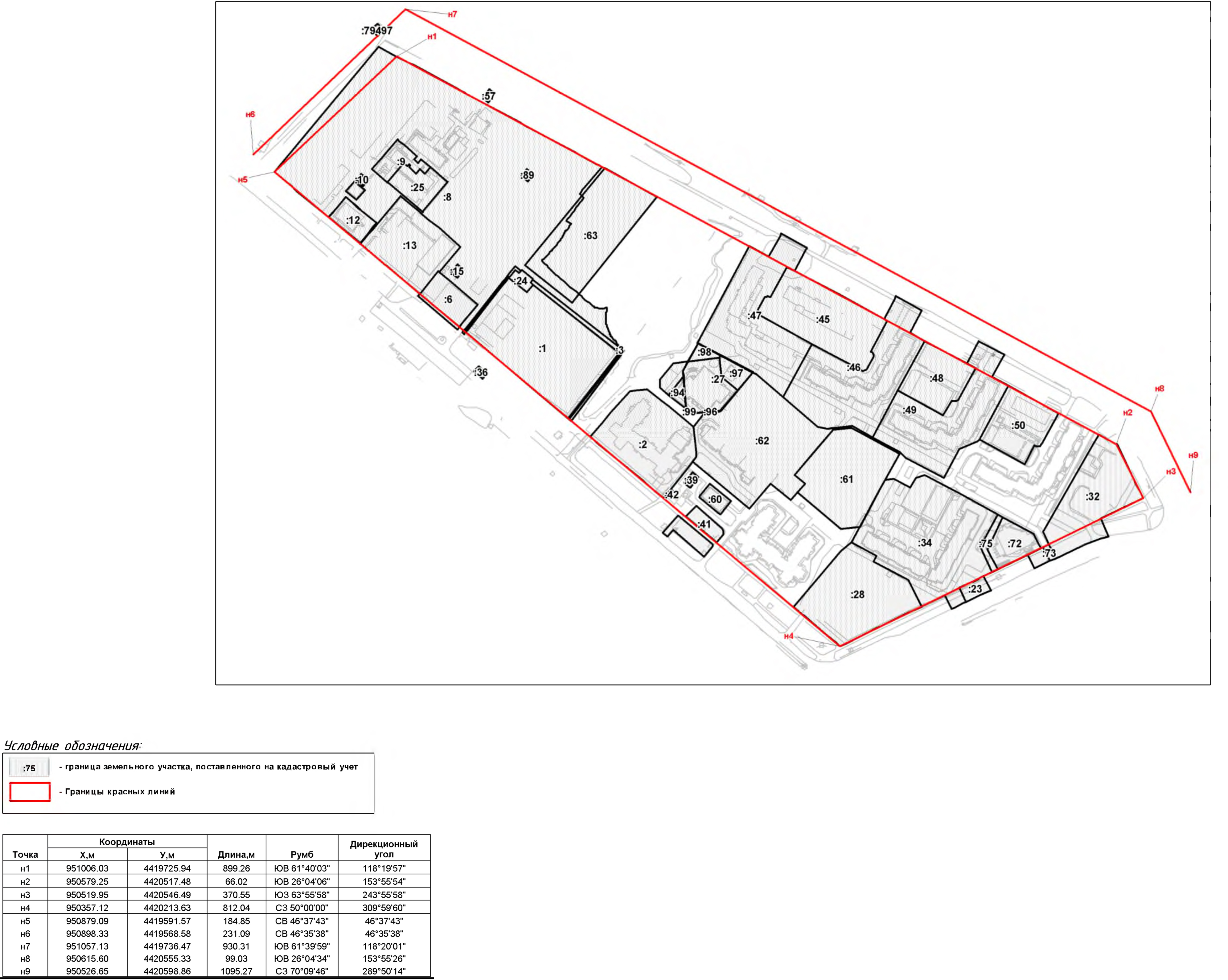
  2. Разбивочный чертеж красных линий
    (JPG, 1.95Мб )

  3. Схема границ установления сервитутов лист 1
    (JPG, 1.52Мб )

  4. Схема границ установления сервитутов лист 2
    (JPG, 1.18Мб )

  5. Схема организации улично-дорожной сети
    (JPG, 1.46Мб )

  6. Чертеж планировки территории
    (JPG, 3.52Мб )

  7. Протокол проведения публичных слушаний
    (PDF, 1.64Мб)

  8. Протокол проведения публичных слушаний (версия для слабовидящих)
    (DOC, 94Кб)

  9. Заключение о результатах проведения публичных слушаний
    (PDF, 844.22Кб)

  10. Заключение о результатах проведения публичных слушаний (версия для слабовидящих)
    (DOCX, 25.16Кб)

размещено:12.08.2016
обновлено: 09.12.2016 08:41:42
 
Нижневартовск www.n-vartovsk.ru